西安泰富西玛电机:YVFE3系列超高效变频调速三相异步电动机
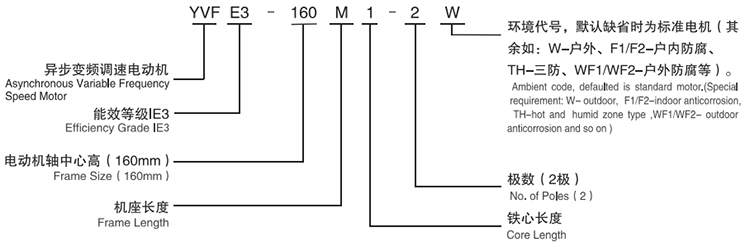
型号说明

以YVFE3-132S2-2为例:YVFE3—电机型号,YVF表示变频调速,E3表示IE3超高高效率;132—中心高;S—机座长度代号;2—铁芯长度代号;2—电机极数。
电机概述
西安泰富西玛YVFE3系列超高效变频调速三相异步电动机是在YE3系列电机基础上派生的变频电机,其效率达到IE3的超效率标准。在结构方面,其散热片采用平行、垂直分布的形式,结构新颖,外形独特,接线盒位于电机顶部,便于用户接线。机座、端盖等零部件设计合理,使整机噪音更低,震动更小,采用轴流通风机强迫通风,保证电机在低速恒转矩长期运行时温升不超过规定值,充分考虑变频器电源供电对电机设计所产生的不良影响,保证电机在高频时的过载能力,又能在低频时保持恒转矩输出。
YVFE3-80-160采用全封闭免维护轴承,YVFE3-180-355前后轴承带注油装置,维护方便。
本系列超高效变频调速三相异步电动机与变频装置构成的调速系统,与其它调速方式相比,节能效果显着,调速性能好,调速范围广,具有噪音低、振动小、可与国内外各种变频器配套的特点,可广泛用于轻功、纺织、化工、冶金、机床等行业的恒转矩,恒功率调速的场合及风机、水泵的节能调速,有助于实现调速系统的自动化控制。
本系列电动机的4极电机符合JB/T7118-2004的规定,其他级数的电机符合IEC34-1的规定,也符合GB755的规定。
电机结构
1、外壳防护等级为IP55,也可按用户要求制成IP55。
2、冷却方式为全封闭带轴流通风机冷却(IC416)。
3、根据用户要求可带各种高分辨率的传感器(光电编吗器、旋转变压器及测速发电机)。
4、根据用户要求可带电磁制动器械(通电、失电制动均可)、齿轮减速机等附件。
5、从轴伸端视之,电机接线盒位于机座右侧,也可按用户要求位于机座左侧或顶部。
电机主要技术性能及技术参数
1、电机为连续工作制。
2、额定电压为380V,额定频率为50HZ。也可根据用户要求确定额定点的电压和频率。
3、绝缘等级为F级。
4、H80-255中心高,5-50HZ为恒转矩调速,H250-355中心高,3-50HZ为恒转矩调速,50-100HZ为恒功率调速。也可根据用户要求确定高频范围。
5、过载能力强。
6、低速性能好。
7、280及以下机座号为Y接法,315 355为△接法。
变频电机使用条件
1、海拔不超过1000m。
2、环境空气温度随季节而变化,但不超过40℃,最低不超过-15℃。
3、最湿月平均相对湿度为90%,同时该月月平均最低温度不高于25℃。
西安泰富西玛变频电机订购须知
1、订货时请注明电动机型号、功率、调速、电压、频率、噪声及安装型式等。若未注明噪声等级,均按2级供货。
2、如有特殊要求,请在合同中注明,并事先与制造厂联系。